Origin Series - Oak TRT28564O

Overview

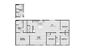
Floor plan

Manufactured

About this home

The Origin Series / Oak TRT28564O built by TRU delivers 1,475 sq. ft. of thoughtfully designed space with 4 bedrooms and 2 bathrooms. The primary suite includes a private bath, while three secondary bedrooms share a convenient hall bath. An open kitchen with island connects seamlessly to the dining space, spacious living room, and a cozy den, offering multiple areas for gathering or retreat. With its balanced layout, The Oak TRT28564O provides comfort, function, and room for every lifestyle.

Share this home

Details

Built by TRU
Bedrooms 4
Bathrooms 2.00
Square Feet 1475
Length 56' 0"
Width 28' 0"
Sections 2
Stories 1
Style Ranch

Tours & Videos

3D Tour

No 3d Tour Available

Specifications

Ac Ready: AC: Conduit
Exterior Wall Studs: 2x4, 16” O.C. spacing
Floor Decking: Decking: 19/32” 4x8 OSB T&G
Floor Joists: Joists: 2x6 / 16” O.C.
Interior Wall Studs: 2x3, 24” O.C. spacing (per print) - Wall Coverings: 3/8” paper on gyp / Wall Coverage at Closets: 3/8” gyp, raw
Other: Attic Ventilation: Static & Ridge Vents
Roof Load: 20 lb. Roof Load Std., 30 psf optional
Roof Truss: 24” O.C. spacing
Side Wall Height: Ext. Wall Height Sidewall 8’-0”, Endwall 8’-0”
Insulation (Floors): R-11
Insulation (Walls): R-11
Insulation (Ceiling): R-30 - Blown Fiberglass
Wind Zone: Wind Zone I Standard., Zones II + III optional
Shutters: Front Door Side Windows and Hitchend
Frame: I - Beam: 12” or 10” model specific / Outriggers: 96” spacing / Crossmembers: 96” spacing / Header: (Front/Rear) Flush, not recessed / Axles: Spread (with equalizers) overslung mounted / Brake Axles: Two, except where more are mandatory by state DOT / Hitch Beam: 8” Detachable Hitch
Thermal Zone: Programmable Thermostat
Exterior Sheathing: Sheathing: 7/16” OSB
Building Code: HUD Code
Additional Specs: Sheathing: Wind Zone I - Thermoply Structural Sheathing
Front Door: Steel front door with Storm
Other: Exterior Faucet
Rear Door: Steel rear door with Storm
Shingles: 25 year - 3 tab
Siding: Vinyl Siding: Standard
Window Type: LUX Thermal Pane Low E Vinyl, size per prints
Exterior Outlets: (1) GFI recept and cover
Ceiling Fans: Wire & Brace for Ceiling Fan in Primary Bed and Living Area
Ceiling Type Or Grade: Textured - Flat Ceiling
Interior Doors: White 6-Panel Door
Interior Lighting: LED Can Lights
Interior Flooring: Vinyl: Challenger Linoleum by Shaw® throughout home
Cabinetry & Counters: Wilsonart® Laminant (TRU Select) / Rolled Countertops / Backsplash: None / Closet Shelving: ClosetMaid® – vinyl wrapped metal
Additional Specs: Interior Receptacles and Switches: White, self contained / Communication Plugs Standad
Cabinet System: Lined Cabinets/Centershelf/Base: DuraCraft® (duracraftcabinets.com) / Box-Built Cabinet Construction
Additional Appliances: Ice Maker Ready / Dehumidifier Ready
Additional Upgrades: Wind Zone II, Wind Zone III / Ice Dam Protection / Gas Option: Range and Furnace only (100 or 200 amp) / 30# roof load, 16” O.C. Trusses / OSB Wrap / Smart Panel Siding / Garden Tub / Insulation / HUD Thermal Zone 3 Standard / Upgrade Insulation – R22-13-33
Additional Specs: COLOR SCHEME: TRU Select
Electrical Service: 200 amp (100 amp allowed when gas option ordered – gas range and gas furnace)
Utility Cabinets: Above washer/dryer
Water Heater: 40 gallon Rheem® electric + dual element
Water Shut Off Valves: Whole House Water Shut Off
HVAC: Heat: Carrier® Electric (gas optional) / Ductwork: Metal duct wrapped with insulation
Bathroom Sink: Plastic
Bathroom Faucets: Pfister® Metal Faucets
Bathroom Shower: Master Bath and Bath #2- Tub/Shower Combo - 54” ABS Plastic - Standard
Kitchen Sink: Stainless Steel, double bow
Kitchen Refrigerator: Frigidaire® 18’ Top Freezer
Kitchen Range Type: Frigidaire® 30” Electric, Coil Top
Kitchen Range Hood: 30”, 100 cfm min, vent through sidewall
Kitchen Faucets: Pfister® Metal Faucets
Kitchen Dishwasher: Frigidaire® 24” Dishwasher

Photos

¿Hablas español?